viaduct hotel
Location: Berlin, Germany
Type: New construction
A hotel, stretched along a railway viaduct, is located in downtown Berlin. Due to the excessive length of the site, we've split the facade into four volumes to balance out its proportions. To give the building a more monolithic appearance, we chose to use a translucent glass for the envelope. It also diffuses the interior light, letting passers-by peek inside the hotel's life.
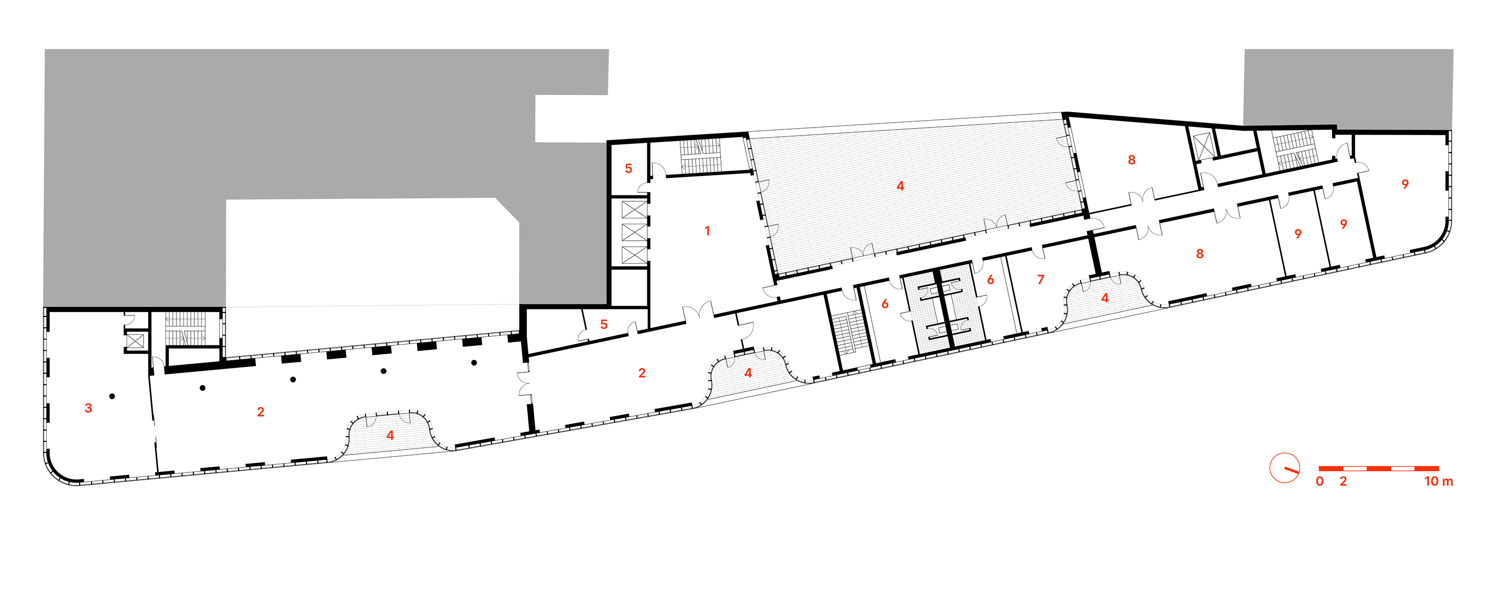
The first two floors host several different functions: a café open for everyone, a restaurant for hotels guests, a spa and fitness areas, and also a hall for various events. We included a courtyard and a spacious terrace located on different levels. A combination of raw concrete and natural wood create a contrast of cool and warm inside the guest rooms. A cosy atmosphere of the courtyard, isolated from the noisy street, and an assortment quiet rooms will let the guests relax, hidden away from their troubles.
october 2018



First floor

Second floor

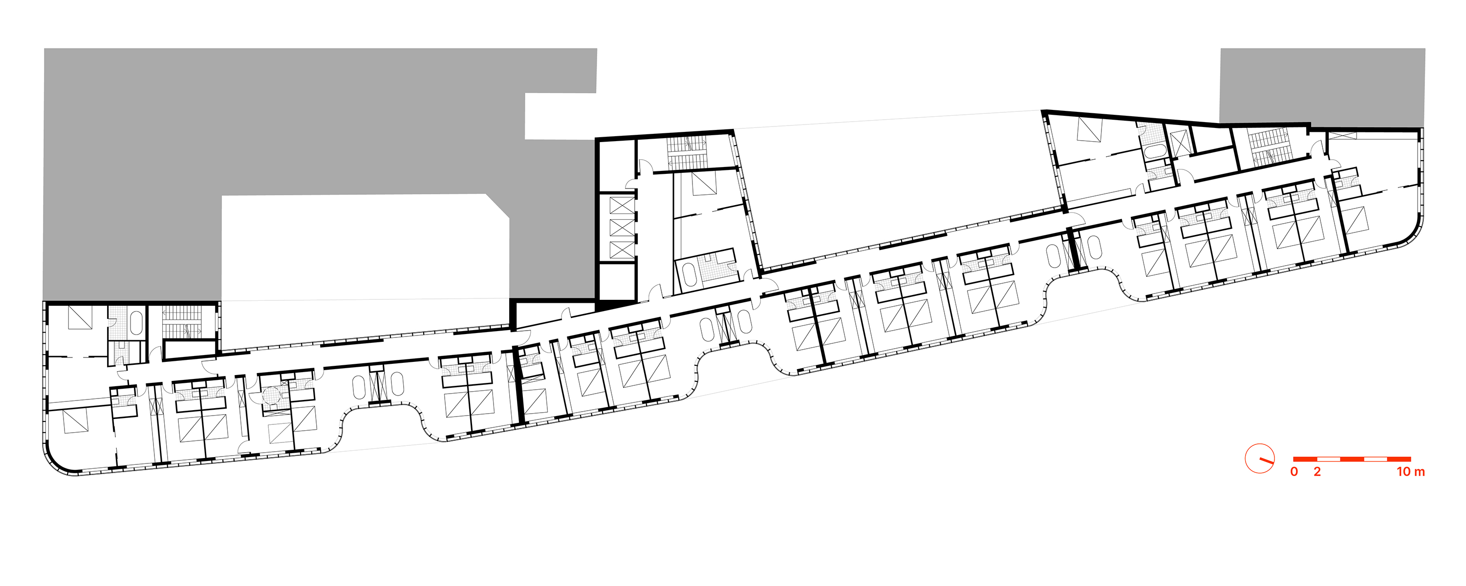
Typical floor


viaduct hotel
Date: October 2018
Location: Berlin, Germany
Type: New construction





First floor

Second floor

Typical floor


A hotel, stretched along a railway viaduct, is located in downtown Berlin. Due to the excessive length of the site, we've split the facade into four volumes to balance out its proportions. To give the building a more monolithic appearance, we chose to use a translucent glass for the envelope. It also diffuses the interior light, letting passers-by peek inside the hotel's life.
The first two floors host several different functions: a café open for everyone, a restaurant for hotels guests, a spa and fitness areas, and also a hall for various events. We included a courtyard and a spacious terrace located on different levels. A combination of raw concrete and natural wood create a contrast of cool and warm inside the guest rooms. A cosy atmosphere of the courtyard, isolated from the noisy street, and an assortment quiet rooms will let the guests relax, hidden away from their troubles.

