vertikale farm
Lage: Cottbus, Deutschland
Typ: Umbau
Der ehemalige Getreidespeicher, der in den 1930er Jahren erbaut wurde, liegt in einem Industriegebiet in Cottbus. Das Gebäude wurde als Skelettbau aus Stahlbeton errichtet, was eine gewisse Flexibilität beim Umbau gewährleistet. Die äußeren Mauerwerkswände beinhalten viele kleine horizontale Fenster, wodurch das Gebäude höher aussieht als es tatsächlich ist. Das Satteldach des Getreidespeichers wurde komplett aus Beton ausgeführt, um das Gebäude vor möglichen Bombardierungen zu schützen. Neben dem Getreidespeicher befindet sich eine Bäckerei, die durch eine Brücke mit dem Speichergebäude verbunden ist.
Für den Speicher wird im Projekt eine neue Funktion angeboten — vertikale Landwirtschaft. Das Hauptziel des Entwurfs lag sowohl in der Schaffung einer effizienten Lebensmittelerzeugung als auch in der Vorschau dieser Prozesse für die Öffentlichkeit. Zu diesem Zweck wurde ein Drittel des Gebäudes in einen "fließenden" Raum für Besucher transformiert, der durch Verglasung vom Betriebsbereich abgetrennt ist. Die Lebensmittel, die im Produktionsbereich angebaut werden, können direkt im Restaurant im Dachgeschoss probiert oder im Laden im Erdgeschoss gekauft werden.
Neben dem Kennenlernen der Produktionsprozesse können die Besucher auch die alte Gebäudesubstanz und darin erhaltene Elemente erkunden, wie z. B. alte Backsteinwände, Betonpilzstützen und eine Getreidesackrutsche. Alle neuen Elemente des Innenraums sowie die Fassade sind mit Cortenstahl verkleidet, was einen Kontrast zwischen Alt und Neu betont.
februar 2019




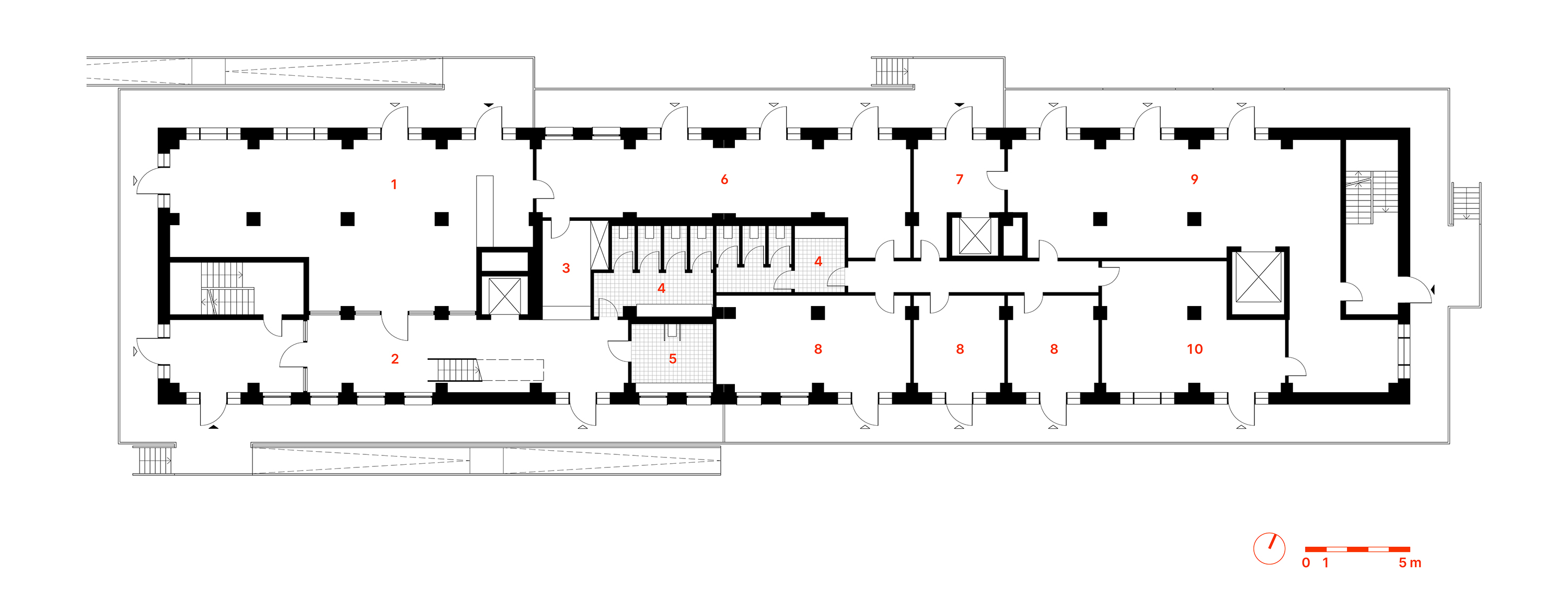
Erdgeschoss

1. Obergeschoss

2. Obergeschoss

3. Obergeschoss

4. Obergeschoss

5. Obergeschoss

6. Obergeschoss


vertikale farm
Datum: Februar 2019
Lage: Cottbus, Deutschland
Typ: Umbau






Erdgeschoss

1. Obergeschoss

2. Obergeschoss

3. Obergeschoss

4. Obergeschoss

5. Obergeschoss

6. Obergeschoss


Der ehemalige Getreidespeicher, der in den 1930er Jahren erbaut wurde, liegt in einem Industriegebiet in Cottbus. Das Gebäude wurde als Skelettbau aus Stahlbeton errichtet, was eine gewisse Flexibilität beim Umbau gewährleistet. Die äußeren Mauerwerkswände beinhalten viele kleine horizontale Fenster, wodurch das Gebäude höher aussieht als es tatsächlich ist. Das Satteldach des Getreidespeichers wurde komplett aus Beton ausgeführt, um das Gebäude vor möglichen Bombardierungen zu schützen. Neben dem Getreidespeicher befindet sich eine Bäckerei, die durch eine Brücke mit dem Speichergebäude verbunden ist.
Für den Speicher wird im Projekt eine neue Funktion angeboten — vertikale Landwirtschaft. Das Hauptziel des Entwurfs lag sowohl in der Schaffung einer effizienten Lebensmittelerzeugung als auch in der Vorschau dieser Prozesse für die Öffentlichkeit. Zu diesem Zweck wurde ein Drittel des Gebäudes in einen "fließenden" Raum für Besucher transformiert, der durch Verglasung vom Betriebsbereich abgetrennt ist. Die Lebensmittel, die im Produktionsbereich angebaut werden, können direkt im Restaurant im Dachgeschoss probiert oder im Laden im Erdgeschoss gekauft werden.
Neben dem Kennenlernen der Produktionsprozesse können die Besucher auch die alte Gebäudesubstanz und darin erhaltene Elemente erkunden, wie z. B. alte Backsteinwände, Betonpilzstützen und eine Getreidesackrutsche. Alle neuen Elemente des Innenraums sowie die Fassade sind mit Cortenstahl verkleidet, was einen Kontrast zwischen Alt und Neu betont.

