meditationscamp
Lage: Vidzeme, Lettland
Typ: Umbau und Erweiterung
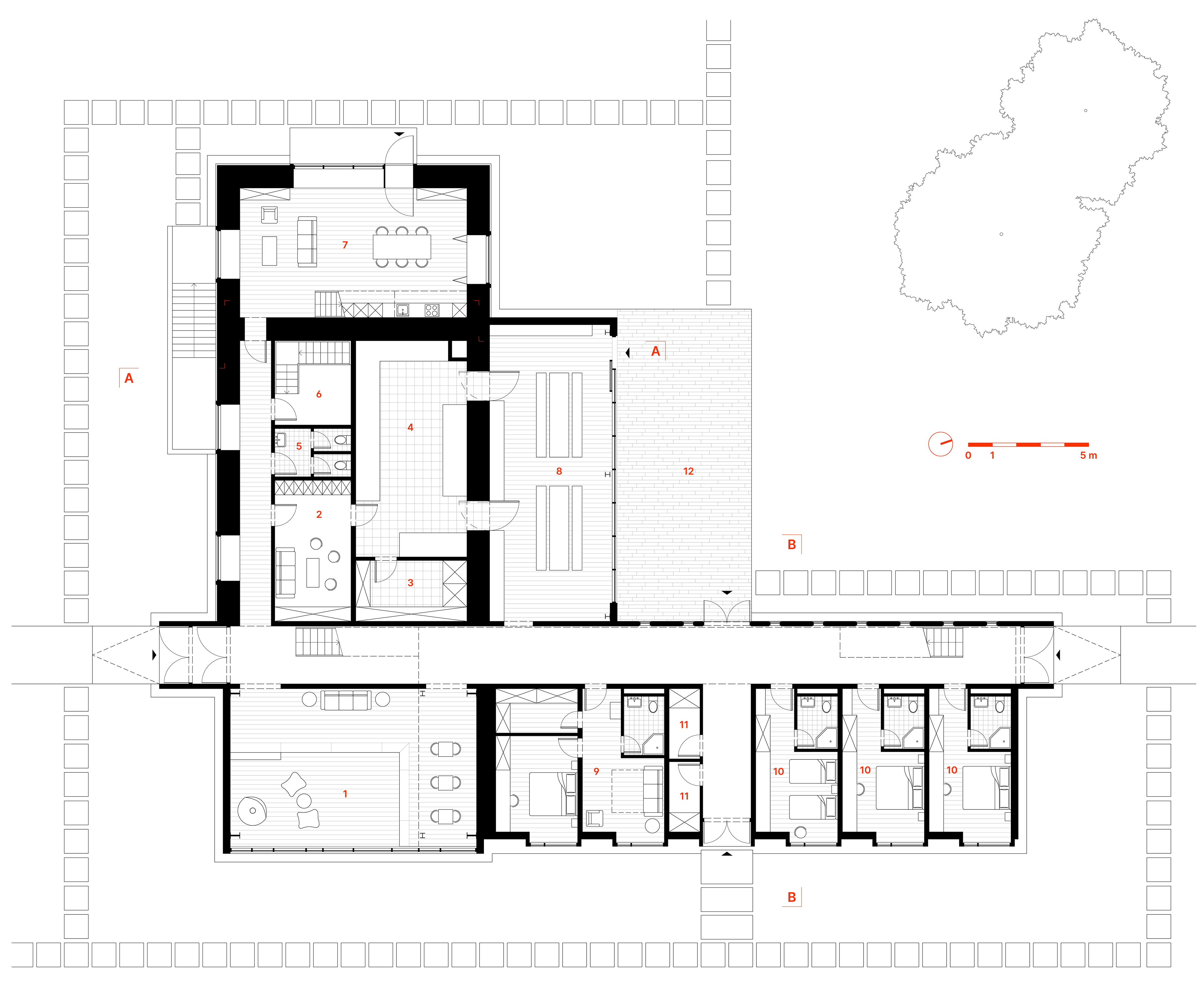
Auf einem Grundstück in Lettland, das sich entlang dem Fluss Bērzaune erstreckt, befindet sich eine alte Steinscheune aus dem späten 19. Jahrhundert. Diese bildet das Herzstück des Projektes. Das Entwurfsziel lag darin, ein Meditationscamp für Ökotourismus zu schaffen. Das Camp ist für eine kleine Anzahl von Personen konzipiert und kann deshalb unkompliziert von der dort lebenden Besitzerfamilie betrieben werden.
Die Scheune befindet sich seit Jahren in einem bedauerlichen Zustand. Aus dem Grund haben wir von der alten Bausubstanz nur die massiven Mauerwerkswände erhalten. Da die Fläche des Scheunengebäudes nicht ausreichend für alle Gästezimmer ist, haben wir eine Gebäudeerweiterung mit öffentlichen Bereichen vorgesehen. Das Scheunengebäude, in dem die Besitzerfamilie wohnt, und der neue Anbau werden durch einen massiven Flur getrennt. Der Flur durchdringt das Hauptgebäude und leuchtet abends wie ein Leuchtturm, der als Landmarke für die Gäste dient. Die Gästezimmer sowie der Gemeinschaftsraum mit Kamin bieten einen Blick auf den Wald, der eine ruhige Atmosphäre für die ganze Anlage schafft.
Die Verbindung zur Natur steht im Vordergrund des Camps. Deshalb nimmt die Bebauung nur einen geringen Teil des Grundstücks ein. Um den Weg zum Hauptgebäude gastfreundlicher zu gestalten, haben wir einen Obstgarten vorgesehen, in dem sich die angekommenen Gäste treffen können. Nach dem Besuch des Scheunengebäudes öffnet sich zu den Gästen ein Waldweg zum Meditationsgebäude.
Dieses Gebäude beinhaltet die Meditationsräume und den Wellnessbereich. Die Form des Meditationsgebäudes deutet seine besondere Funktion an und bildet einen Kontrast zur traditionellen Form der alten Scheune. Der Hauptbereich von diesem Gebäude ist die Meditationshalle mit einem Blick auf die Wiese und den Fluss. Außerdem steht den Campgästen eine Möglichkeit zur Verfügung, sich in einem stimmungsvollen "stillen" Raum zu entspannen, in dem der Geist von der Hektik der Stadt befreit werden kann.
mai 2017



Erdgeschoss

1. Obergeschoss

Schnitt A-A

Schnitt B-B


Meditationsgebäude

Schnitt A-A

Schnitt B-B


meditationscamp
Datum: Mai 2017
Lage: Vidzeme, Lettland
Typ: Umbau und Erweiterung







Erdgeschoss

1. Obergeschoss

Schnitt A-A

Schnitt B-B




Meditationsgebäude

Schnitt A-A

Schnitt B-B


Auf einem Grundstück in Lettland, das sich entlang dem Fluss Bērzaune erstreckt, befindet sich eine alte Steinscheune aus dem späten 19. Jahrhundert. Diese bildet das Herzstück des Projektes. Das Entwurfsziel lag darin, ein Meditationscamp für Ökotourismus zu schaffen. Das Camp ist für eine kleine Anzahl von Personen konzipiert und kann deshalb unkompliziert von der dort lebenden Besitzerfamilie betrieben werden.
Die Scheune befindet sich seit Jahren in einem bedauerlichen Zustand. Aus dem Grund haben wir von der alten Bausubstanz nur die massiven Mauerwerkswände erhalten. Da die Fläche des Scheunengebäudes nicht ausreichend für alle Gästezimmer ist, haben wir eine Gebäudeerweiterung mit öffentlichen Bereichen vorgesehen. Das Scheunengebäude, in dem die Besitzerfamilie wohnt, und der neue Anbau werden durch einen massiven Flur getrennt. Der Flur durchdringt das Hauptgebäude und leuchtet abends wie ein Leuchtturm, der als Landmarke für die Gäste dient. Die Gästezimmer sowie der Gemeinschaftsraum mit Kamin bieten einen Blick auf den Wald, der eine ruhige Atmosphäre für die ganze Anlage schafft.
Die Verbindung zur Natur steht im Vordergrund des Camps. Deshalb nimmt die Bebauung nur einen geringen Teil des Grundstücks ein. Um den Weg zum Hauptgebäude gastfreundlicher zu gestalten, haben wir einen Obstgarten vorgesehen, in dem sich die angekommenen Gäste treffen können. Nach dem Besuch des Scheunengebäudes öffnet sich zu den Gästen ein Waldweg zum Meditationsgebäude.
Dieses Gebäude beinhaltet die Meditationsräume und den Wellnessbereich. Die Form des Meditationsgebäudes deutet seine besondere Funktion an und bildet einen Kontrast zur traditionellen Form der alten Scheune. Der Hauptbereich von diesem Gebäude ist die Meditationshalle mit einem Blick auf die Wiese und den Fluss. Außerdem steht den Campgästen eine Möglichkeit zur Verfügung, sich in einem stimmungsvollen "stillen" Raum zu entspannen, in dem der Geist von der Hektik der Stadt befreit werden kann.

