мебельный шоурум
Место: Одесса, Украина
Тип: Новое строительство
Трёхэтажное здание шоурума расположено в промышленном малоэтажном районе Одессы на территории мебельной фабрики. Лаконичная форма здания подчёркивает его особую функцию и выделяет на фоне других зданий комплекса. Для усиления целостности фасада часть окон была скрыта листами белого перфорированного металла.
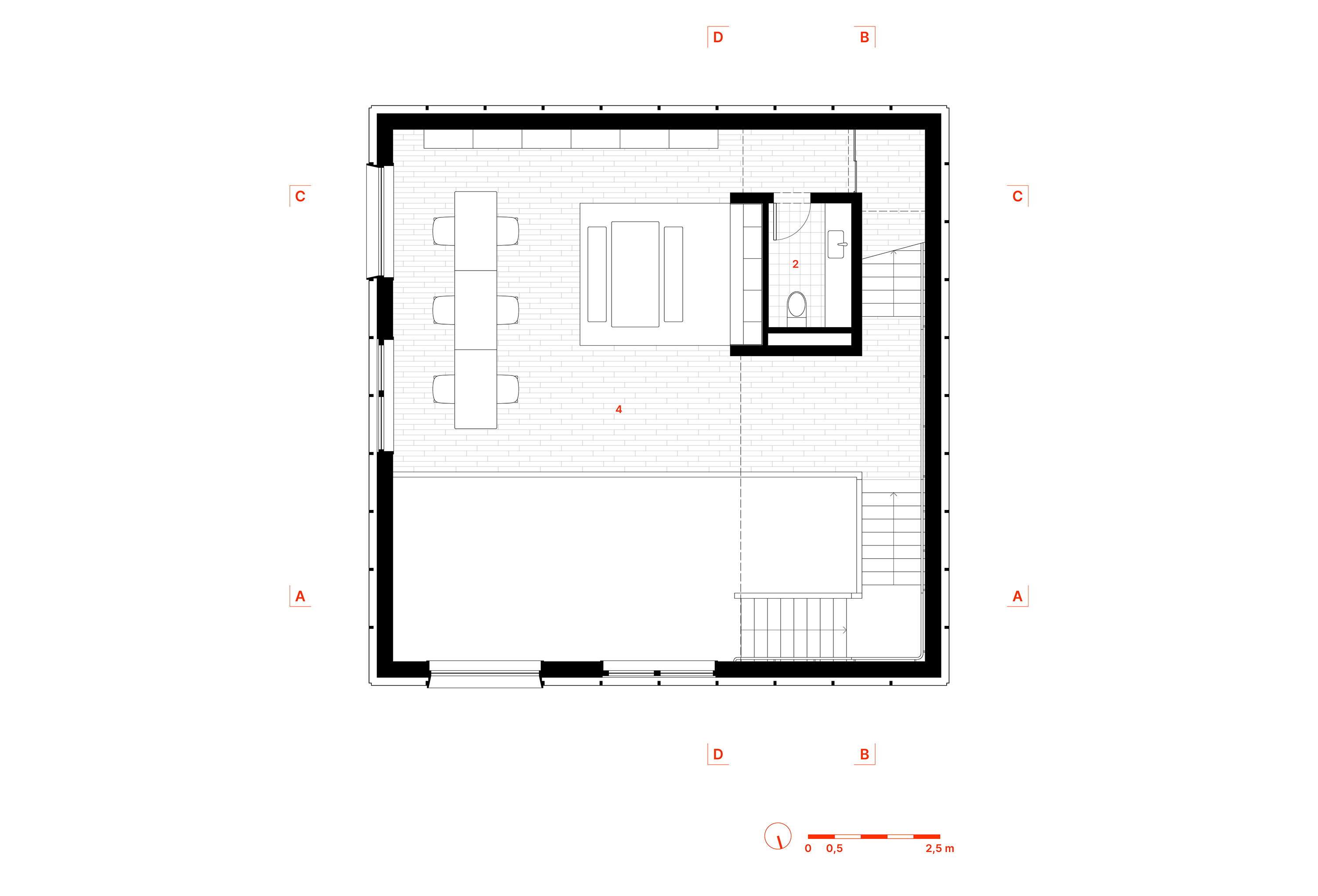
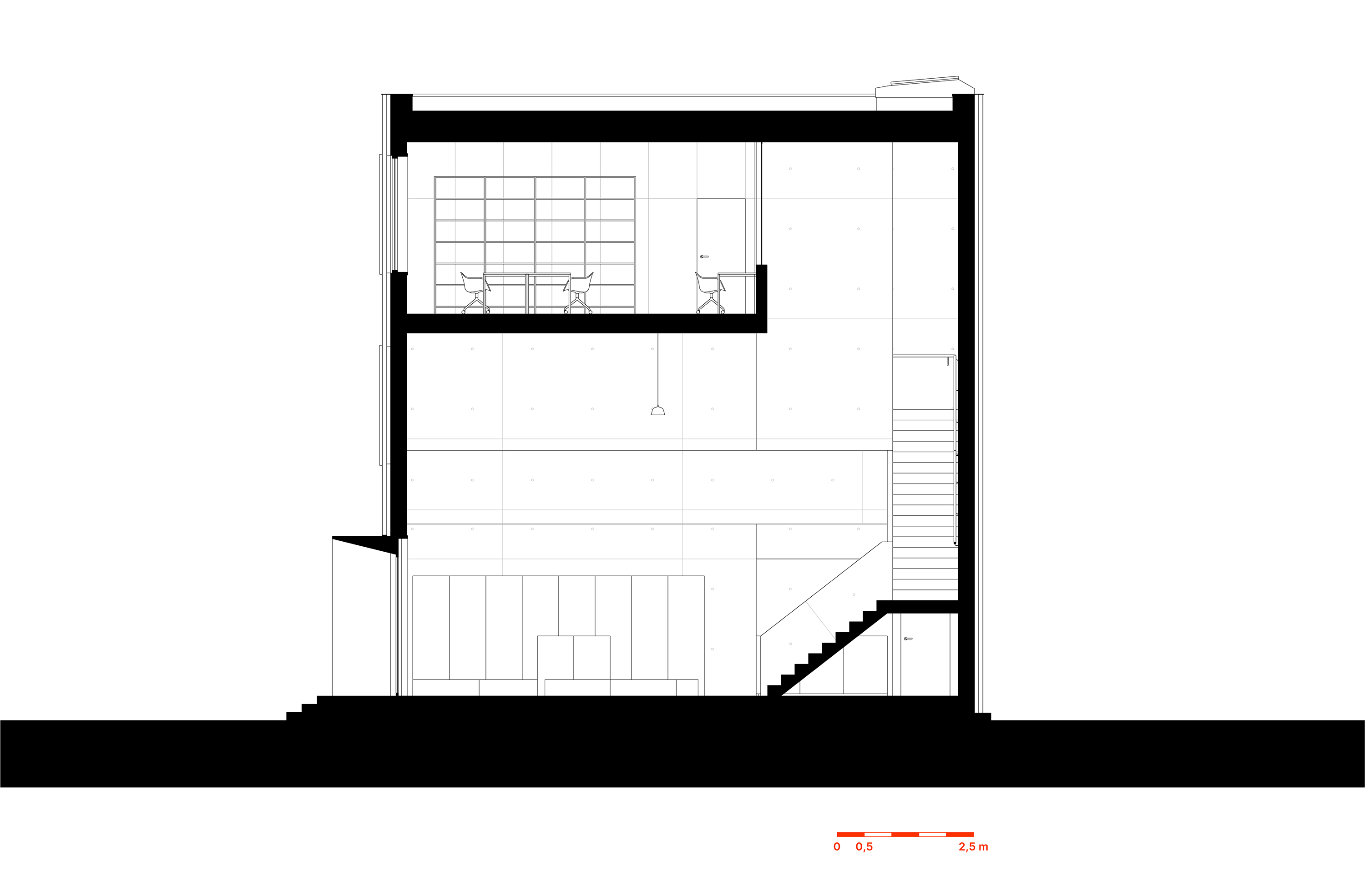
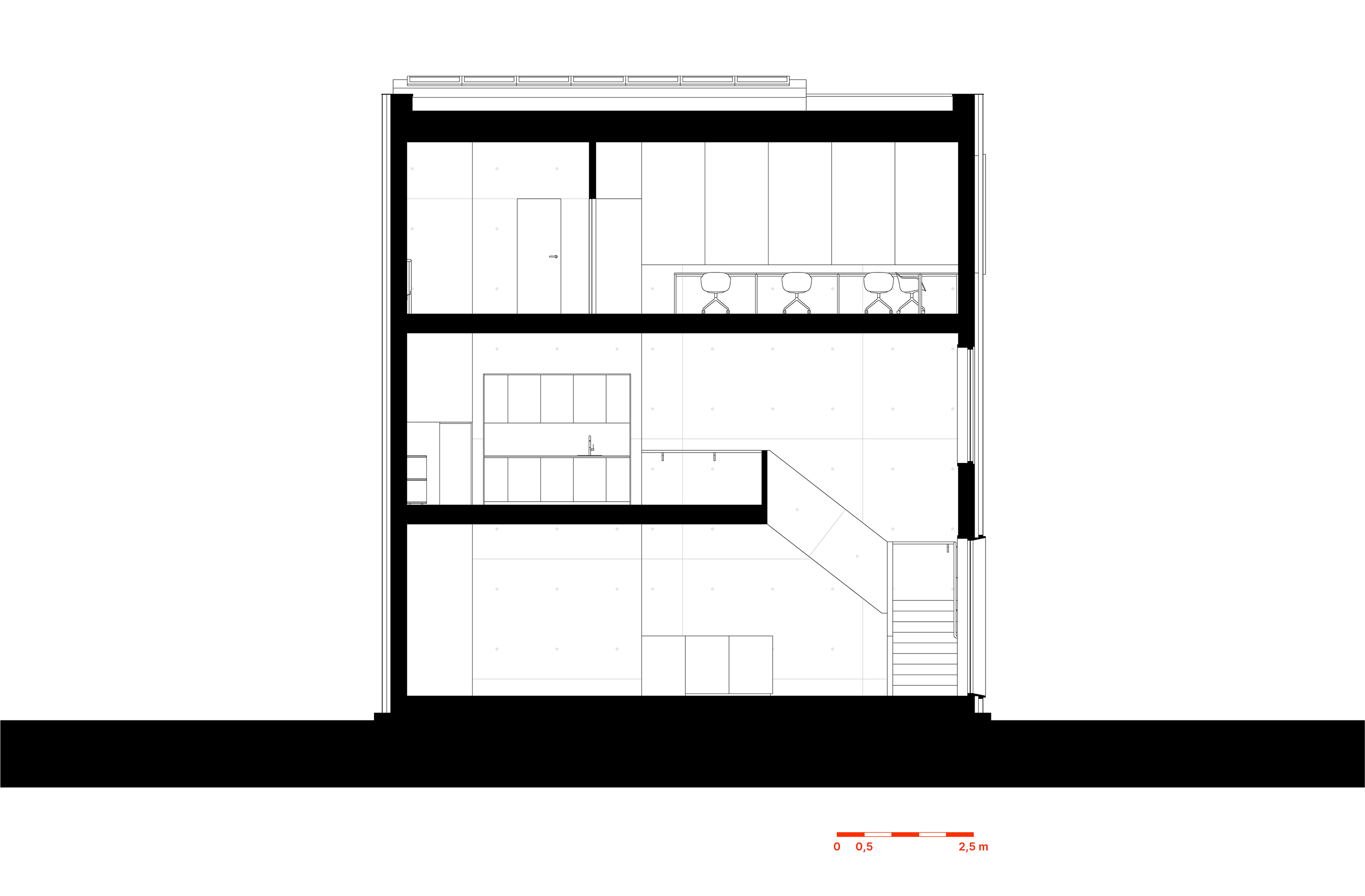
Здание поделено на трети. Этот приём использован как на фасаде, так и в интерьере. Внешние стены и ядро, выполненные из монолитного бетона, позволили нам избежать дополнительных несущих конструкций. Перекрытия второго и третьего этажей занимают две трети от пятна здания, что объединяет интерьер в единое пространство.
Заходя в шоурум, вы оказываетесь в главном выставочном помещении. Падающий сверху дневной свет привлекает внимание к лестнице, которая ведёт к зоне для работы с клиентами. Поднимаясь ещё выше, пройдя под световым фонарём, вы попадёте в конференц-комнату и офисное пространство, где заканчивается ваш путь по зданию.
февраль 2018











Первый этаж

Второй этаж

Третий этаж

Разрез A-A

Разрез B-B

Разрез C-C

Разрез D-D


мебельный шоурум
Дата: Февраль 2018
Место: Одесса, Украина
Тип: Новое строительство

















Первый этаж

Второй этаж

Третий этаж

Разрез A-A

Разрез B-B

Разрез C-C

Разрез D-D


Трёхэтажное здание шоурума расположено в промышленном малоэтажном районе Одессы на территории мебельной фабрики. Лаконичная форма здания подчёркивает его особую функцию и выделяет на фоне других зданий комплекса. Для усиления целостности фасада часть окон была скрыта листами белого перфорированного металла.
Здание поделено на трети. Этот приём использован как на фасаде, так и в интерьере. Внешние стены и ядро, выполненные из монолитного бетона, позволили нам избежать дополнительных несущих конструкций. Перекрытия второго и третьего этажей занимают две трети от пятна здания, что объединяет интерьер в единое пространство.
Заходя в шоурум, вы оказываетесь в главном выставочном помещении. Падающий сверху дневной свет привлекает внимание к лестнице, которая ведёт к зоне для работы с клиентами. Поднимаясь ещё выше, пройдя под световым фонарём, вы попадёте в конференц-комнату и офисное пространство, где заканчивается ваш путь по зданию.

